共通メニューなどをスキップして本文へ
文字サイズ
Languages
記事ID検索
半角数字10桁以内で入力してください。
防災情報
Language
メニュー
文字サイズ変更機能を利用するにはJavaScript(アクティブスクリプト)を有効にしてください。JavaScript(アクティブスクリプト)を無効のまま文字サイズを変更する場合には,ご利用のブラウザの表示メニューから文字サイズを変更してください。文字サイズ変更以外にも,操作性向上の目的でJavaScript(アクティブスクリプト)を用いた機能を提供しています。可能であればJavaScript(アクティブスクリプト)を有効にしてください。
スマートフォン表示用の情報をスキップ
閉じる
[2025年9月5日]
ID:11111
トップページ|利用案内|施設案内|交通案内|主催講座|クラブ|公民館だより
※館内は禁煙です
1階 平面図
1階 第1会議室
1階 第2会議室
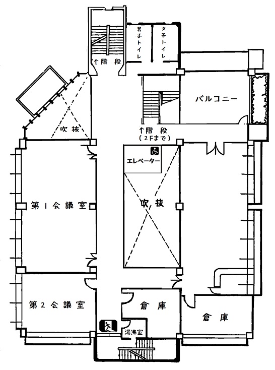
2階 平面図
2階 第1会議室
2階 第2会議室
3階 平面図
3階 研修室
3階 手芸室
3階 視聴覚室
3階 和室
所在地: 〒709-3111 岡山市北区建部町福渡496-1 [所在地の地図]
電話: 086-722-2212 ファクス: 086-722-2160
お問い合わせフォーム
PAGETOP